Açıklama
Özellikler
- Hassas dijital sıcaklık kontrolü
- Forklift ile taşınabilir tasarım
- Dökülmeye karşı koruma
- Zemine sıfır olarak yapılabilir
- 2 yıl imalatçı garantisi
Kapasite
12 varil (200lt) veya 3 IBC Tank
5400kg taşıma kapasitesi
Yapı Malzemeleri
Tüm çelik konstrüksiyon şunları içerir:
• 1.2 mm iç duvarlar ve 1,4 mm dış duvarlar
• Entegre çerçeve ve güçlü profiller
• 304 paslanmaz çelik konstrüksiyon ( opsiyonel )
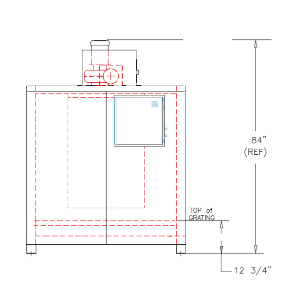
Boyutlar
İç Boyutlar:
440cm:W x 140cm:D x 125cm:H
Dış Boyutlar:
455cm:W x 160cm:D x 210cm:H
Yalıtım
7cm kalınlık ve mineral yün izolasyon
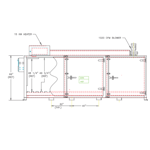
Isıtma kaynağı
Elektrik
Isı kapasitesi
• 15kw (diğer kw’lar opsiyonel)
• 240 veya 380 volt 3 faz
• Dijital ve oransal sıcaklık kontrol cihazı
Çalışma Sıcaklığı
Oda sıcaklığı ile 180 °C arasında
Görünüm
Dış : Fırın boya
İç : Fırın boya
Paslanmaz çelik ( opsiyonel )
Ağırlık
2200kg
Kurulum
Tamamen monte edilmiş gönderilir.
Yerine kurulduktan sonra çalışmaya hazırdır.
Mühendislik
Teknik şartnameye uygun tasarlanmıştır. Tasarım, kontrol ve güvenlik sistemleri opsiyonel olarak değiştirilebilir.
Hava sirkülasyonu
1700m3 hava sirkülasyonu fanı
1/3 HP
* Yanıcı maddeleri ısıtmak için kullanılmamalıdır.
* Elektrikli modeller patlayıcı ortamda kullanılmaya uygun değildir.
* Patlayıcı ortama uygun fırın imalatımız vardır.







